Технические характеристики ВМК
|
Марка вентилятора
|
Напряжение, В/ частота, Гц
|
Фазность
|
Потребляемая мощность, Вт
|
Ток, А
|
Мах расход воздуха, м3/ч
|
Частота вращения об/мин
|
|
225-2Е
|
220 / 50
|
1
|
150
|
0.7
|
1010
|
2600
|
|
Марка вентилятора
|
Мах температура переме- щаемого воздуха, С
|
Класс защиты двигателя
|
Ёмкость конден- сатора, мкФ
|
Масса, кг
|
Электрическая схема подключения
|
|
225-2Е
|
60
|
IP 54
|
4
|
13
|
А
|
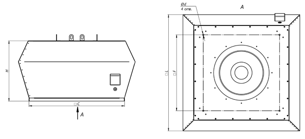
Габаритно-присоединительные размеры ВМК

|
Марка вентилятора
|
H, мм
|
C, мм
|
L, мм
|
F, мм
|
d, мм
|
Масса, кг
|
|
225-2Е
|
230
|
400
|
370
|
245
|
12
|
13
|
Акустические характеристики ВМК
|
Марка вентилятора
|
LpA
|
Октановые полосы частот, Гц
|
|
Гц
|
Общ.
|
125
|
250
|
500
|
1k
|
2k
|
4k
|
8k
|
|
225-2E
|
LpA, вход
|
дБ(А)
|
74
|
49
|
65
|
71
|
67
|
65
|
62
|
56
|
|
LpA, выход дБ(А)
|
дБ(А)
|
76
|
50
|
65
|
71
|
71
|
70
|
63
|
52
|
Аэродинамические характеристики ВМК
Доставка
Торговый дом "Промышленная вентиляция" осуществляет доставку продукции специальным транспортом, с удобной клиенту логистикой и способом в любой регион России. Оформление заказов и транспортировку определяют такие алгоритмы:
- для расчетов время следования груза от станции погрузки до места выгрузки закладывается до двух суток, но практически перевозка осуществляется быстрее, часто продукцию можно получить в течение этих же суток;
- при оформлении поставки наш менеджер звонит клиенту, с тем, чтобы оптимизировать доставку, для этого задаются следующие вопросы: фактический адрес, режим станции, контактное лицо, оптимальная дата для клиента, специальные условия на станции выгрузки (наличие пропуска, оформление доверенности и другие особенности);
- нашим клиентам доступен самовывоз на собственном транспорте.
Оплата
Торговый дом "Промышленная вентиляция" принимает оплату перечислением на расчетный счет по предварительно выставленному счету. Взаимодействие с клиентами осуществляется в такой последовательности:
- мы используем все варианты расчетов: оплата по факту отгрузки, 100% предоплата, отсрочка действующим клиентам на банковские или календарные дни;
- после проведения транша наш менеджер сообщает клиенту, что деньги поступили на р/с, озвучивает последующие действия по договору;
- для каждой отправляемой партии время устанавливается индивидуально, сроки определяются в спецификации.
Предоставляем услуги монтажа и установки высокоэффективных вентиляционных систем с дальнейшим сервисным обслуживанием. В работе мы используем только качественное оборудование известных производителей, имеем все необходимые лицензии и сертификаты качества.
Установка вентиляции производится согласно индивидуально разработанному проекту, который обязательно должен соответствовать санитарно-гигиеническим общепринятым стандартам.